Les infos Essentielles
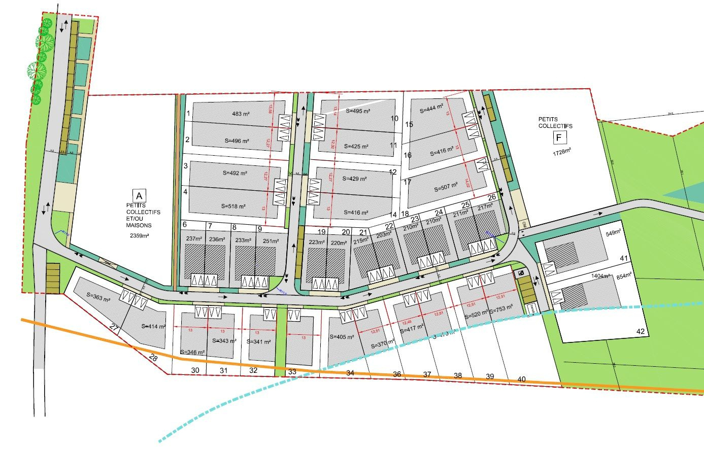
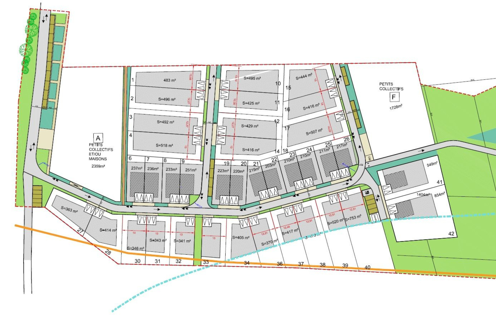
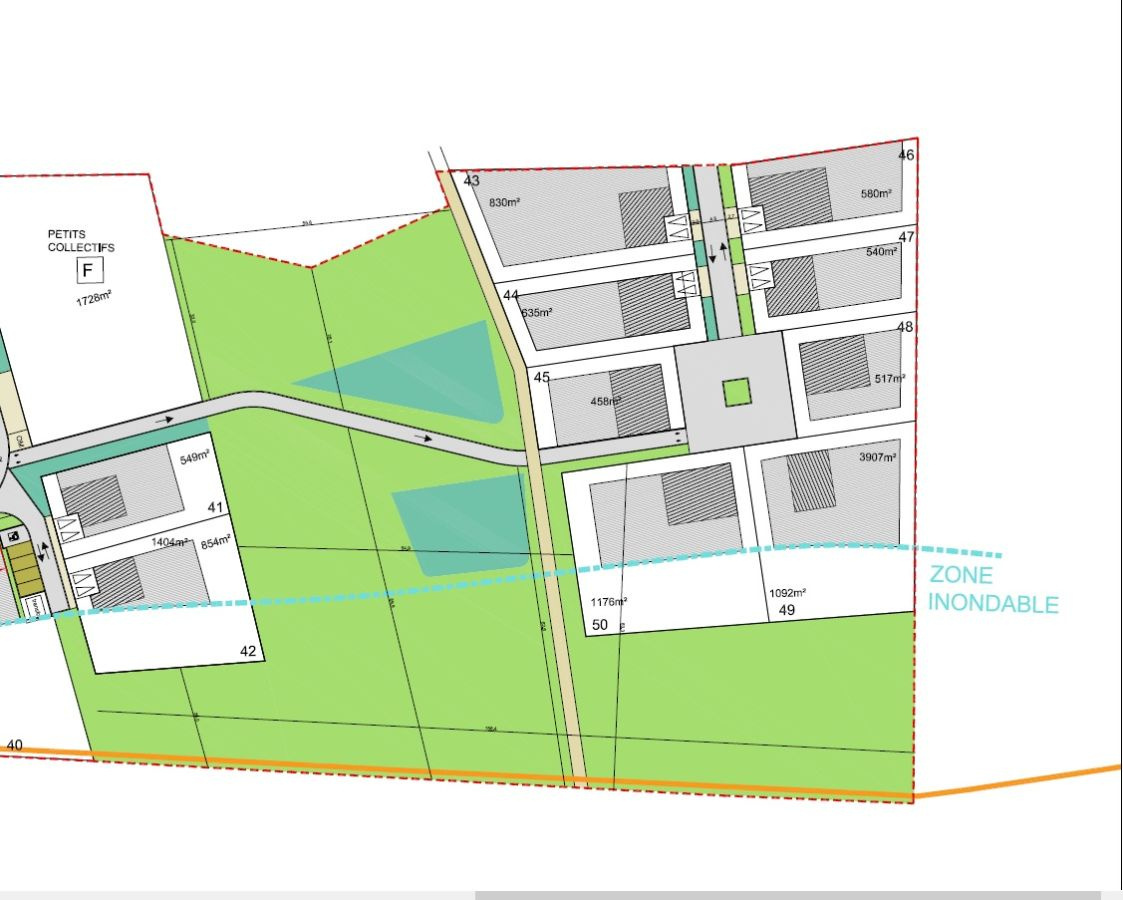
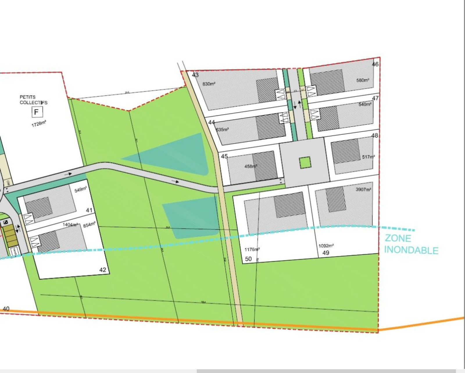
MONTIGNY LES METZ - Lotissement La Horgne Du Sablon située au Parc De La Closerie. Idéalement situé - ce nouveau lotissement se situe au croisement de Metz Magny - Metz Sablon (Gare) et Marly - LOT 21 Terrain constructible de 214m² vendu viabilisé comprenant une surface plancher de construction affecté de 180m². Exposition Sud-Est - façade de 9m. Plusieurs terrains sont actuellement disponibles: superficies comprises entre 2.03 ares et 8.30 ares et prix de vente compris entre 99 938€ et 288 770€ en fonction de leurs spécificités. Libre de constructeur. Hauteur: R+1+Toiture - pas de prescription concernant l'emprise au sol. Livraison prévue fin 1er Trimestre 2026 avec voirie provisoire. Prix affiché hors DMTO.
Découvrir
le bien
Intéressé(e) par
Ce bien ?
Les informations recueillies sur ce formulaire sont enregistrées dans un fichier informatisé par La Boite Immo agissant comme Sous-traitant du traitement pour la gestion de la clientèle/prospects de l'Agence / du Réseau qui reste Responsable du Traitement de vos Données personnelles.
La base légale du traitement repose sur l’intérêt légitime de l'Agence / du Réseau.
Elles sont conservées jusqu'à demande de suppression et sont destinées à l'Agence / au Réseau.
Conformément à la loi « informatique et libertés », vous pouvez exercer votre droit d'accès aux données vous concernant et les faire rectifier en contactant l'Agence / le Réseau.
Si vous estimez, après avoir contacté l'Agence / le Réseau, que vos droits « Informatique et Libertés » ne sont pas respectés, vous pouvez adresser une réclamation à la CNIL.
Nous vous informons de l’existence de la liste d'opposition au démarchage téléphonique « Bloctel », sur laquelle vous pouvez vous inscrire ici : https://www.bloctel.gouv.fr
Dans le cadre de la protection des Données personnelles, nous vous invitons à ne pas inscrire de Données sensibles dans le champ de saisie libre
Ce site est protégé par reCAPTCHA, les Politiques de Confidentialité et les Conditions d'Utilisation de Google s'appliquent.
La base légale du traitement repose sur l’intérêt légitime de l'Agence / du Réseau.
Elles sont conservées jusqu'à demande de suppression et sont destinées à l'Agence / au Réseau.
Conformément à la loi « informatique et libertés », vous pouvez exercer votre droit d'accès aux données vous concernant et les faire rectifier en contactant l'Agence / le Réseau.
Si vous estimez, après avoir contacté l'Agence / le Réseau, que vos droits « Informatique et Libertés » ne sont pas respectés, vous pouvez adresser une réclamation à la CNIL.
Nous vous informons de l’existence de la liste d'opposition au démarchage téléphonique « Bloctel », sur laquelle vous pouvez vous inscrire ici : https://www.bloctel.gouv.fr
Dans le cadre de la protection des Données personnelles, nous vous invitons à ne pas inscrire de Données sensibles dans le champ de saisie libre
Ce site est protégé par reCAPTCHA, les Politiques de Confidentialité et les Conditions d'Utilisation de Google s'appliquent.
contacter
l'agence
Détails des diagnostics énergétiques
DPE ANCIENNE VERSION
Ces biens peuvent aussi
vous intéresser
Sainte-Barbe (57640)
SAINTE BARBE - nouveau petit lotissement idéalemen
Coup de coeur
Ennery (57365)
