Les infos Essentielles
MONTIGNY LES METZ - Les Terrasses De Lizé - Nouveau Programme Neuf situé au cœur du Quartier LIZE. Localisation idéale: à quelques minutes du centre ville de Metz - proches des écoles - commerces - transports en commun et des axes autoroutiers - elle permet de concilier vie pratique et sérénité - Nous vous proposons à la vente ces appartements neufs T3 (11) de 65.02m² à 73.65m² compris entre 284500€ et 304500€. T2 (11) et T4 (5) également disponibles. Cette future Résidence de Standing sera érigée sur 3 étages + attiques avec places de parking en sous sol. Situé au cœur du Quartier Lizé - ces biens profitent d'un environnement recherché - mêlant calme résidentiel et dynamisme urbain. Proche de l'ancienne caserne réhabilitée - le site a été repensé pour offrir un cadre de vie moderne - avec de nombreux espaces verts - des voies piétonnes et un esprit de quartier convivial. Construits avec des matériaux de qualité et des finitions soignées. Chauffage urbain. Livraison 4 ème trimestre 2028
Découvrir
le bien
Les infos Energetiques
DPE ANCIENNE VERSION
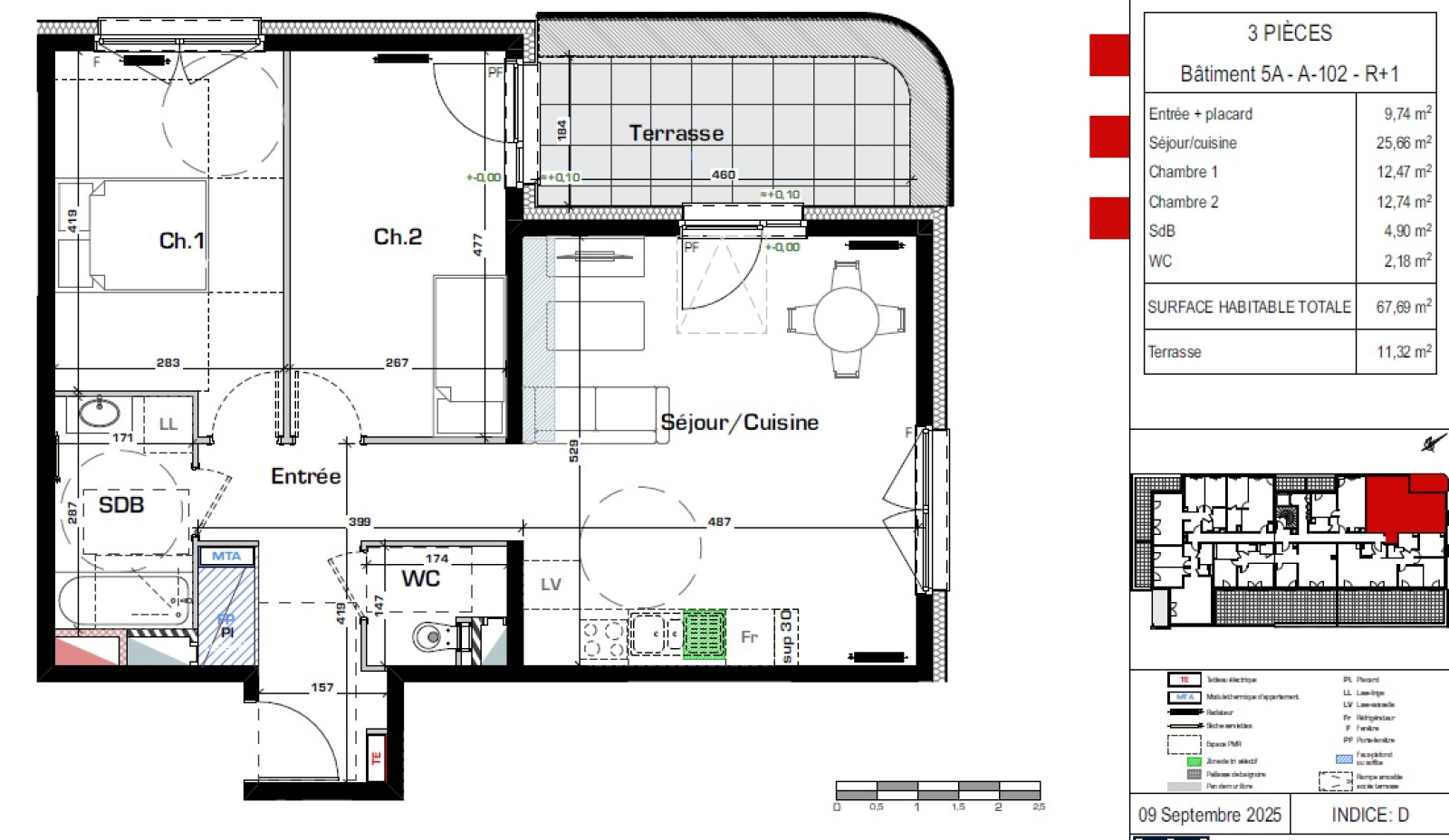
Rez de chaussée
entrée / hall
9.74 m²
séjour cuisine
25.66 m²
chambre 1
12.47 m²
chambre 2
12.74 m²
salle de bains
4.90 m²
wc séparé
2.18 m²
Intéressé(e) par
Ce bien ?
Les informations recueillies sur ce formulaire sont enregistrées dans un fichier informatisé par La Boite Immo agissant comme Sous-traitant du traitement pour la gestion de la clientèle/prospects de l'Agence / du Réseau qui reste Responsable du Traitement de vos Données personnelles.
La base légale du traitement repose sur l’intérêt légitime de l'Agence / du Réseau.
Elles sont conservées jusqu'à demande de suppression et sont destinées à l'Agence / au Réseau.
Conformément à la loi « informatique et libertés », vous pouvez exercer votre droit d'accès aux données vous concernant et les faire rectifier en contactant l'Agence / le Réseau.
Si vous estimez, après avoir contacté l'Agence / le Réseau, que vos droits « Informatique et Libertés » ne sont pas respectés, vous pouvez adresser une réclamation à la CNIL.
Nous vous informons de l’existence de la liste d'opposition au démarchage téléphonique « Bloctel », sur laquelle vous pouvez vous inscrire ici : https://www.bloctel.gouv.fr
Dans le cadre de la protection des Données personnelles, nous vous invitons à ne pas inscrire de Données sensibles dans le champ de saisie libre
Ce site est protégé par reCAPTCHA, les Politiques de Confidentialité et les Conditions d'Utilisation de Google s'appliquent.
La base légale du traitement repose sur l’intérêt légitime de l'Agence / du Réseau.
Elles sont conservées jusqu'à demande de suppression et sont destinées à l'Agence / au Réseau.
Conformément à la loi « informatique et libertés », vous pouvez exercer votre droit d'accès aux données vous concernant et les faire rectifier en contactant l'Agence / le Réseau.
Si vous estimez, après avoir contacté l'Agence / le Réseau, que vos droits « Informatique et Libertés » ne sont pas respectés, vous pouvez adresser une réclamation à la CNIL.
Nous vous informons de l’existence de la liste d'opposition au démarchage téléphonique « Bloctel », sur laquelle vous pouvez vous inscrire ici : https://www.bloctel.gouv.fr
Dans le cadre de la protection des Données personnelles, nous vous invitons à ne pas inscrire de Données sensibles dans le champ de saisie libre
Ce site est protégé par reCAPTCHA, les Politiques de Confidentialité et les Conditions d'Utilisation de Google s'appliquent.
contacter
l'agence
Détails des diagnostics énergétiques
DPE ANCIENNE VERSION
Ces biens peuvent aussi
vous intéresser
Longeville-lès-Metz (57050)
EXCLUSIF - Longeville Les Metz - Situation excepti
Montigny-lès-Metz (57950)
